8 Tisk
Před tiskem výkresu z QCadu je zapotřebí nastavit měřítko výstupu
(výtisku). Tím může být 1:1 nebo jakékoliv jiné požadované
měřítko. Před samotným tiskem výkresu se doporučuje spustit náhled
před tiskem. V tomto náhledu můžete nastavit jak měřítko, tak i
pozici výkresu na papíru.
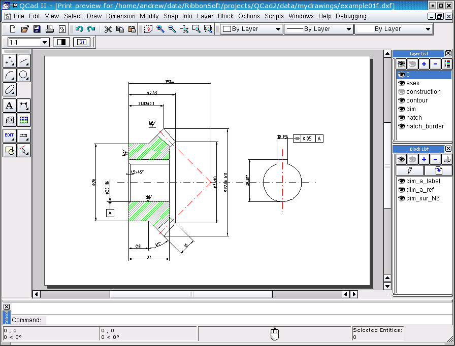
Náhled před tiskem
Panel nástrojů:

Menu:
Soubor - Náhled před tiskem
Panel možností:

Otevře náhled na aktuální výkres před tiskem. Náhled vám ukáže, jak
bude výkres vypadat po vytištění. V panelu možností nastavte v
roletovém menu měřítko pro vytištění. Tlačítko uprostřed přepíná
černobílý mód. Pokud je aktivováno, všechny čáry na výkresu budou
místo odstínů šedi nebo barev pouze černé. Pro vycentrování výkresu
na stránku použijte pravé tlačítko. Pokud si přejete jinou pozici
výkresu na papíru, můžete ji nastavit ručně jednoduchým uchopením
papíru levým tlačítkem myši a potažením papíru kamkoliv si přejete.

Figure 11:
Náhled před tiskem.
Tisk
Panel nástrojů:

Menu:
Soubor - Tisk
Klávesová zkratka:
Ctrl-P
Tímto příkazem vytisknete výkres bez použití náhledu před
tiskem. Před tím, než se cokoliv vytiskne se zobrazí dialogové okno
tisku, kde je možno zvolit si tiskárnu. V tento moment můžete také
vybrat nebo změnit typ papíru, nicméně toto se příliš
nedoporučuje. Formát papíru je totiž možno měnit v nastavení
samotného výkresu ještě před tiskem. Pokud v tomto dialogovém okně
změníte formát papíru, výstup nebude odpovídat náhledu před tiskem.
Tisk do souboru
V dialogovém okně tisku můžete zaškrtnout políčko "Tisk do
souboru". Výstup bude místo na tiskárnu směřován do souboru. V
Unixových systémech a v Mac OS X bude vytvořen Postscript soubor. Ve
Windows bude vytvořen binární tiskový soubor (PRN). Tento soubor je
závislý na tiskárně. Pro tvorbu PS souborů ve Windows je nutno
nainstalovat Postscriptový tiskový ovladač např. "APS-PS".
Soubory typu PS mohou být jednoduše převáděny do PDF pomocí
takzvaných distillerů jako je například program ps2pdf nebo Acrobat Distiller.
|