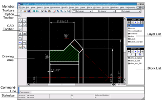
5 QCad felhasználói felület
A QCad program indításakor egy ablakban jelenik meg a
grafikus felhasználói felület. Ezen belül
találhatóak majd a műszaki rajzok ablakai.
Az alkalmazás ablaka
A QCad grafikus felhasználói felülettel (GUI)
rendelkezik, olyan funkciókkal, amelyeket más programokban már
megszokhatott. Ebben a fejezetben a fő alkalmazás ablak
legfontosabb részeit ismerheti meg (8 ábra).

Ábra 8: A QCad program fő
ablaka.
A menü és a CAD eszköztár
A legtöbb funkciót a menün keresztül is
elérheti. A szerkesztő műveletekhez kényelmesebb a bal
oldalon található CAD eszköztár használata. Ott
mindig az aktuális szerkesztési művelethez tartozó
funciókat találja. Például egy szakasz
kezdőpontjának megadásakor az igazítás
eszközeit láthatja (igazítás végponthoz,
metszésponthoz, rácsponthoz, stb.).
Fólia és blokk listák
A program ablakának jobb oldalán látható a
fólia és blokk lista. Ezek az aktuális rajz fóliáit,
blokkjait mutatják.
A listák ki- és bekapcsolhatóak a
Nézet - Nézetek - Fólia lista
és
Nézet - Nézetek - Blokk lista
menüpontokkal.
Állapotsor
A státusz sorban jelenik meg a QCad aktuális állapota. A
bal oldali részén levő panelen olvasható az egér
aktuális pozíciója abszolút és relatív
(Descartes és polár) koordinátákkal. Az egér panel
tájékoztatja a gombokhoz tartozó funkciókról. A
kijelölés panelen megmutatja a kiválasztott elemek
számát.
Az állapotsor ki- és bekapcsolható a
Nézet - Állapotsor
menüpontban.
Parancs panel
Pontosan az állapotsor felett található a QCad
parancssora. Ott gépelheti be az utasításokat, adatokat
és ott olvashat tájékozatató, hiba és
figyelmeztető üzeneteket.
A parancssor ki- és bekapcsolható a
Nézet - Nézetek - Konzol
menüpontban.
Beállítások eszköztár
A beállítások eszköztár üres a
8 ábrán. Az aktuális szerkesztő művelet
beállításait és tulajdonságait jeleníti meg.
Amennyiben előnyben részesíti a parancssor
használatát, kikapcsolhatja a
Nézet - Eszköztárak - Eszköz
beállításai
menüben.
Parancsok végrehajtása
A QCad programon belül minden szerkesztés a kiadott
parancsokkal történik. Több módja is van egy parancs
végrehajtásának:
- a megfelelő ikon kiválasztásával a CAD
eszköztáron
- a megfelelő menüpont aktiválásával
- a parancs begépelésével
A menü és az eszköztár használata a
leginkább elterjedt.
Néhány művelet további paraméterek
megadására vár. Ezt szintén három úton teheti
meg:
- Ablakok. Például a szövegek létrehozása
során megjelenő ablakban beállítható a
szöveg betűkészlete, tartalma, elforgatása,
stb..
- Beállítások eszköztár. Például
párhuzamosok szerkesztése során meg kell adni a
távolságot. Az eszköztáron megjelenik egy
adatbeviteli mező a megadott távolság
értékével (9 ábra).
- Parancssor. Például polinomok szerkesztése során
a 'zar' parancs begépelésével automatikusan
bezárható a síkidom.

Ábra 9: Az eszköz
beállításai.
Működés
A QCad program kétféle módon működhet:
parancssori
és
normál
. A parancssori módban a begépelt utasításokkal
dolgozhat. Normál módban minden billentyű leütés a
kezelő felület hatáskörébe tartozik.
Parancssori mód
Ezt a módot a parancssori panel feliratának kék
színe és a villogó kurzor jelzi. Ekkor minden
billentyűleütés megjelenik a parancssorban. Ezúton tud
parancsokat és koordinátákat begépelni. Például
a
vonal
szó begépelésével indíthatja a vonalhúzás
eszközét.
Normál mód
Ebben a módban a QCad program úgy viselkedik, mint
bármely másik. Minden billentyű leütést
gyorsbillentyű kombinációként értelmez, a nem
támogatott kombinációkat figyelmen kívül hagyja. Ha
ekkor lenyomja az
na
gombokat, bekapcsolja az automatikus nagyítást.
|